vominh1102
Thành viên
- Tham gia
- 26/9/2019
- Bài viết
- 0
The Lotus Center Vimefulland Ciputra Tây Hồ chính thức mở bán tổ hợp căn hộ Officetel, Căn hộ chung cư cao cấp, Biệt thự, liền kề thấp tầng. Vị trí nằm ngay mặt đường Võ Chí Công, đầu cầu Nhật Tân, view Hồ Tây đắt giá. Đây sẽ là dự án bất động sản HOT nhất 2019 tại Tây Hồ.
♦ Chủ đầu tư: Tập đoàn Vimedimex
♦ Bao gồm 3 phân khu :
– Platium center point (officetel)
– Green Central Villas( khu BT2,BT5, liền kề, biệt thự song lập)
– Goden Center Lake (chung cư C5, C6 và BT10)
♦ Hình thức phát triển: Chung cư, Căn hộ Officetel, Biệt thự.
♦ Vị trí dự án: Khu đô thị Ciputra — Nam Thăng Long — Tây Hồ
♦ Bao gồm 2 giai đoạn:
– Giai đoạn 1 (1 tòa Officetell ,80 căn liền kề — biệt thự song lập ở khu Bt5, BT5B, BT5C..)
– Giai đoạn 2 (8 tòa chung cư C5-C6, CCB, BT2. BT10, BT8
♦ Loại hình phát triển: Căn hộ cao cấp Golden Center Lake ( Sở hữu vĩnh viễn), Căn hộ Officetel ( Sở hữu 50 năm), ♦ Liền kề — Shophouse thấp tầng Green Center Villas
♦ Nhà thầu: ECOBA Việt Nam.
♦ Đơn vị bảo lãnh dự án: Ngân hàng BIDV
♦ Thời gian khởi công: Tháng 5/2019
♦ Thời gian bàn giao: Quý IV/2021
GIỚI THIỆU VỀ THE LOTUS CENTER VIMEFULLAND
The Lotus Center Ciputra — Siêu phẩm mới được ra mắt của Tập đoàn Vimefulland sở hữu vị trí đắc địa ngay trong khu đô thị Quốc tế Ciputra Hà Nội, hệ thống tiện ích cao cấp tiêu chuẩn 5 sao, đang tạo nên cơn sốt tại thị trường bất động sản Tây Hồ trong quý II/2019.
Phân khu 1: Platinum Center Point — Tòa căn hộ Officetel ( sở hữu 50 năm).
Phân khu 2: Golden Center Lake — Tòa căn hộ chung cư cao cấp ( Sở hữu vĩnh viễn )
Phân khu 3: Green Center Villas — Tổ hợp biệt thự, liền kề, shophouse thấp tầng
VỊ TRÍ VÀ KẾT NỐI GIAO THÔNG TỪ DỰ ÁN
Hiếm có dự án nào trong khu vực lại sở hữu vị trí và kết nối giao thông đắc địa như tại The Lotus Center Tây Hồ. Dự án được thừa hưởng tất cả hệ thống tiện ích, cơ sở hạ tầng hoàn thiện và phát triển của khu đô thị Ciputra, các vùng phụ cận. Từ dự án , cư dân có thể dễ dàng di chuyển vào trung tâm thành phố cũng như các quận, huyện khác chỉ từ 5–10 phút bằng phương tiện cá nhân thông qua trục được huyết mạch Võ Chí Công, Nguyễn Văn Huyên kéo dài, Phạm Văn Đồng, cầu Nhật Tân, cầu Thăng Long…
Kết nối vùng từ The Lotus Center Tây Hồ:
Khu đô thị Ciputra: ngay trong khu đô thị Cầu Nhật Tân: 500m
Sân bay Nội Bài: 18km
Công viên nước Hồ Tây: 1km
Thung lũng hoa Hồ Tây: 1.5km
Chợ Bưởi: 4km Đại học Quốc gia: 1km
Bến xe Mỹ Đình: 9km
Khu liên hợp thể thao Quốc gia Mỹ Đình: 10km
Bệnh viện E: 7km
Công viên Hòa Bình: 4km
Trường Quốc tế LHQ ( UNIS): 1km
ĐIỂM QUA HỆ THỐNG TIỆN ÍCH TẠI THE LOTUS CENTER CIPUTRA
Tiện ích The Lotus Center Ciputra được các khách hàng đánh giá cao bởi sự đa dạng và cao cấp, đạt chuẩn khách sạn 5 sao. Với 5 tầng trung tâm thương mại, chủ đầu tư Vimefulland tích hợp hàng loạt tiện ích đẳng cấp dành cho cư dân như các phòng tập Gyms, Yoga & Fitness, khu vui chơi trẻ em trong nhà, bể bơi 4 mùa, siêu thị, Spa, nhà hàng Á — Âu… Tiện ích ngoại khu của dự án bao gồm:
Bể bơi ngoài trời + vườn BBQ
Tuyến phố đi bộ
Tuyến đi dạo Lối vào sảnh lớn Khu vui chơi trẻ em
Cổng chào chính
Trục đường chính
Phía trước khu quảng trường
Chòi nghỉ + dịch vụ
Quảng trường nhạc nước + Cây ánh sáng
Vườn nhỏ khu thấp tầng Cổng phụ
MẶT BẰNG, THIẾT KẾ CĂN HỘ THE LOTUS CENTER VIMEFULLAND
Các kiến trúc sư của dự án The Lotus Center Tây Hồ đã kế thừa những giá trị tinh hoa của kiến trúc và nội thất thế giới, khéo léo đưa những đường nét tinh tế vào The Lotus Center Ciputra. Sự giao thoa giữa các phong cách kiến trúc, sự hòa trộn từ đường nét trẻ trung hiện đại của vật liệu mới, với những hoa văn đá, dát vàng theo phong cách cổ điển châu Âu, căn hộ sẽ trở nên “đắt giá” khi mỗi gia chủ đều cảm nhận được cuộc sống bình yên, hưởng thụ.
Sẽ còn gì tuyệt vời hơn khi trở về nhà sau những giờ làm việc căng thẳng, tận hưởng những phút giây thư thái bên người thân và gia đình…Cùng thưởng thức bữa cơm thân mật, hay ngắm hoàng hôn , nhâm nhi ly rượu vang ấm nồng bên ô cửa sổ, ban công..với tầm view Panorama ra Hồ Tây, sông Hồng lộng gió.
MẶT BẰNG THIẾT KẾ CĂN HỘ OFFICETEL TÂY HỒ — HOMETEL
Officetel Vimefulland Tây Hồ có vị trí tại lô đất TM01 — Ciputra — Phú thượng, tây hồ, Hà Nội. Có quy mô : 2 Đơn Nguyên A & B, 5 tầng hầm, 40 tầng nổi :
Tầng 1–2 : Shophouse ( sẽ bán cho khách hàng)
Tầng 3–4–5 :Vimedimex chuyển văn phòng về
Tầng 6–40 : Căn hộ
Tổng số căn : 3395 căn : 95 căn/ sàn ( 4 cụm thang máy, mỗi cụm 6 thang)
Thiết kế tổng quan tòa A — Officetel Tây Hồ — The Lotus Center Ciputra
Tòa A dự án Officetel Tây Hồ — The Lotus Center có quy mô 5 tầng hầm, 5 tầng thương mại, 43 căn/sàn, 20 thang máy/sàn chia làm 2 cụm thang máy. Các loại diện tích được thiết kế như sau:
+ Căn hộ 1PN diện tích 46m2: 19 căn/sàn
+ Căn hộ 2PN diện tích 61m2- 66m2: 21 căn/sàn
+ Căn hộ 2PN diện tích 75m2: 2 căn/sàn
+ Căn hộ 2PN diện tích 112m2: 1 căn/sàn
Mặt bằng tổng thể dự án
Mặt bằng tổng quan của dự án nhìn kỹ chúng ta sẽ biết được ưu, nhược điểm chi tiết của từng căn, từ đó giúp quý khách hàng muốn sở hữu căn hộ officetel tây hồ sẽ dễ dàng lựa chọn được căn hộ phù hợp cho riêng mình:
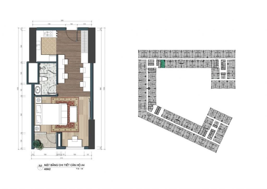
1. Căn hộ 1 phòng ngủ 46m2
Mỗi sàn có 19 căn hộ loại 1 phòng ngủ diện tích 46m2, trong đó:
– Có 10 căn ban công Đông Bắc gồm các căn: 03–04–05–06–07–08–38–39–42–43
– Có 4 căn ban công Đông Nam view nội khu và Hồ Tây: 33–34–11–12A
– Có 2 căn ban công hướng Nam view thành phố và Hồ Tây: Căn số 17–18
– Có 3 căn ban công Tây Nam view nội khu Ciputra: Gồm các căn 30–31–32
Thiết kế căn hộ officetel tây hồ 1PN
Ưu điểm căn hộ 1 phòng ngủ diện tích 46m2:
+ Diện tích vừa đủ, thiết kế không gian tối ưu rất linh hoạt.
+ Giá bán vừa túi tiền, không quá cao mà lại sở hữu ngay quận trung tâm của thành phố.
+ Số lượng căn hộ này không nhiều trong khi nhu cầu sở hữu của khách lại rất cao.
+ Là căn hộ 3 trong 1: Vừa để ở, vừa có thể làm văn phòng hoặc cho thuê là văn phòng, kinh doanh Homestay
+ Dễ dàng cho người nước ngoài thuê theo hình thức Hotel hoặc Homestay.
+ Có logia riêng biệt để lấy ánh sáng và phơi đồ (tất cả các căn hộ được thiết kế thông minh để đón ánh sáng tự nhiêu).
+ Có không gian làm việc và không gian nghỉ ngơi riêng biệt phù hợp làm văn phòng và cư chú qua đêm.
+ Có khu bếp riêng biệt để có thể kinh doanh Homestay.
+ Các căn 33–34–11–12A ban công Đông Nam view nội khu và Hồ Tây có tầm view rất tuyệt, mát vào mùa Hè, ấm vào mùa Đông.
+ Các căn 42–43 ban công Đông Bắc view toàn cảnh nội khu rất đẹp gồm: Khuôn viên cây xanh, bể bơi, đài phun nước…
Nhược điểm căn hộ officetel tây hồ 1 phòng ngủ:
+ Diện tích không được lớn,chỉ phù hợp với nhà đầu tư hoặc người độc thân hay gia đình trẻ mua để ở.
+ Bếp ăn bố trí ngay cửa ra vào nên dễ gây mùi khi nấu ăn (cần phải có công cụ hút mùi)
+ Tầm view hạn chế đối với những căn tầng thấp
+ Những căn ban công Tây Nam sẽ khá nóng vào mua Hè.
Đối với những căn hộ loại này sẽ hướng tới những ai nên mua căn hộ 1PN cho phù hợp:
+ Nhà đầu tư có số tiền nhàn rỗi mua để cho thuê làm văn phòng.
+ Nhà đầu tư mua từ 3–5 căn để kinh doanh theo mô hình Homestay.
+ Gia đình trẻ, người độc thân mua để ở rất phù hợp
+ Doanh nghiệp nhỏ và vừa, cộng đồng mới khởi nghiệp để làm văn phòng hay mở công ty riêng.
+ Mua căn hộ officetel này để làm việc cho yên tĩnh và dùng để nghỉ ngơi cuối tuần.
2.Đối với căn hộ 2 phòng ngủ
Tòa tháp officetel tây hồ một sàn có 24 căn hộ thiết kế 2 phòng ngủ gồm các loại diên tích:
+ Diện tích 61m2- 66m2: 21 căn/sàn gồm các căn officetel:
– 01–02: Ban công Tây Bắc view nội khu.
– 09–10: Ban công Đông Nam view Hồ Tây
– 15A-15B-19–20–21–22–23–24–25–26: Ban công hướng Nam view nội khu thành phố.
– 26–27: Ban công Tây Nam view nội khu Ciputra
– 35: Ban công Đông Nam view nội khu
– 36–37–40–41: Ban công Đông Bắc view nội khu.
Thiết kế căn hộ 2PN
+ Diện tích: 75m2: 2 căn/sàn gồm các mã căn:
– 12B và 16: Ban công hướng Nam view Hồ Tây và view thành phố.
+ Diện tích 112m2: Có 1 căn/sàn là căn 27, ban công hướng Nam view thành phố.
Ưu điểm căn hộ 2 phòng ngủ:
+ Thiết kế tối ưu công năng 2 phòng ngủ, 2 wc, 2 ban công tiện dụng.
+ Giá thành vừa túi tiền, dễ đầu tư, dễ chuyển nhượng, tính thanh khoản rất cao.
+ Cho thuê làm văn phòng cực kỳ hiệu quả
+ Dùng làm văn phòng với số lượng nhân sự 18–20 người.
+ Kinh doanh Homestay mang lại lợi nhuận cao (12–15%/năm)..
+ Căn hộ 11–12A ban công Đông Nam view Hồ Tây cực đẹp.
+ Các căn 35–36–37–40–41 view toàn cảnh nội khu cực đẹp.
+ Căn số 27 có diện tích rộng 112m2, phù hợp với doanh nghiệp đông nhân sự.
Nhược điểm căn hộ 2 phòng ngủ:
+ Giá thành cao hơn căn 1PN lên giảm số lượng khách hàng vì đa số chọn căn 1PN.
+ Không gian bếp nấu ăn sẽ dễ gây mùi, khắc phục bằng cách bật hút mùi khi nấu ăn hoặc bỏ hẳn khu bếp khi không cần thiết với làm văn phòng.
+ Các căn 28–29 ban công hướng Tây Nam sẽ khá nóng vào mùa Hè, khắc phục bằng cách trồng cây xanh ở ban công và sử dụng vật liệu chống nóng ở bức tường hướng Tây.
+ Những căn tầng thấp có tầm view hạn chế.
Trên đây là những phân tích chia sẻ về thông tin về thiết kế căn hộ 1PN và 2PN của căn hộ Officetel The Lotus Center. Với lợi thế ra hàng đợt 1 giá cực tốt, thiết kế tối ưu và giá bán vừa túi tiền, đây chính là cơ hội tốt nhất cho Quý khách hàng cũng như các nhà đầu tư xuống tiền để sở hữu được căn hộ ưng ý.
Căn hộ The Lotus Center đáp ứng đa dạng nhu cầu căn hộ từ diện tích 46 tới 112m2.
GIÁ BÁN, TIẾN ĐỘ THANH TOÁN, CHÍNH SÁCH BÁN HÀNG
Giá bán các căn hộ The Lotus Center Ciputra, Tiến độ thanh toán, Chính sách bán hàng liên hệ trực tiếp phòng kinh doanh chủ đầu tư Vimefulland
Để nhận các thông tin mới nhất quý khách hàng vui lòng liên hệ phong kinh doanh vimefulland:
Hotline : 0916.05.9696
Địa chỉ : Tầng 10,12 — Tháp A — Tòa nhà Sông Đà — 36 Mễ Trì — Nam Từ Liêm — Hà Nội.
https://bietthuathenafulland.vn/can-ho-officetel-vimefulland-tay-ho.html
- Dự án The Lotus Center — Thông tin tổng quan
- Tiết lộ lý do căn hộ Officetel chiếm ưu thế dẫn đầu thị trường đầu tư
♦ Chủ đầu tư: Tập đoàn Vimedimex
♦ Bao gồm 3 phân khu :
– Platium center point (officetel)
– Green Central Villas( khu BT2,BT5, liền kề, biệt thự song lập)
– Goden Center Lake (chung cư C5, C6 và BT10)
♦ Hình thức phát triển: Chung cư, Căn hộ Officetel, Biệt thự.
♦ Vị trí dự án: Khu đô thị Ciputra — Nam Thăng Long — Tây Hồ
♦ Bao gồm 2 giai đoạn:
– Giai đoạn 1 (1 tòa Officetell ,80 căn liền kề — biệt thự song lập ở khu Bt5, BT5B, BT5C..)
– Giai đoạn 2 (8 tòa chung cư C5-C6, CCB, BT2. BT10, BT8
♦ Loại hình phát triển: Căn hộ cao cấp Golden Center Lake ( Sở hữu vĩnh viễn), Căn hộ Officetel ( Sở hữu 50 năm), ♦ Liền kề — Shophouse thấp tầng Green Center Villas
♦ Nhà thầu: ECOBA Việt Nam.
♦ Đơn vị bảo lãnh dự án: Ngân hàng BIDV
♦ Thời gian khởi công: Tháng 5/2019
♦ Thời gian bàn giao: Quý IV/2021
GIỚI THIỆU VỀ THE LOTUS CENTER VIMEFULLAND
The Lotus Center Ciputra — Siêu phẩm mới được ra mắt của Tập đoàn Vimefulland sở hữu vị trí đắc địa ngay trong khu đô thị Quốc tế Ciputra Hà Nội, hệ thống tiện ích cao cấp tiêu chuẩn 5 sao, đang tạo nên cơn sốt tại thị trường bất động sản Tây Hồ trong quý II/2019.
Phân khu 1: Platinum Center Point — Tòa căn hộ Officetel ( sở hữu 50 năm).
Phân khu 2: Golden Center Lake — Tòa căn hộ chung cư cao cấp ( Sở hữu vĩnh viễn )
Phân khu 3: Green Center Villas — Tổ hợp biệt thự, liền kề, shophouse thấp tầng
VỊ TRÍ VÀ KẾT NỐI GIAO THÔNG TỪ DỰ ÁN
Hiếm có dự án nào trong khu vực lại sở hữu vị trí và kết nối giao thông đắc địa như tại The Lotus Center Tây Hồ. Dự án được thừa hưởng tất cả hệ thống tiện ích, cơ sở hạ tầng hoàn thiện và phát triển của khu đô thị Ciputra, các vùng phụ cận. Từ dự án , cư dân có thể dễ dàng di chuyển vào trung tâm thành phố cũng như các quận, huyện khác chỉ từ 5–10 phút bằng phương tiện cá nhân thông qua trục được huyết mạch Võ Chí Công, Nguyễn Văn Huyên kéo dài, Phạm Văn Đồng, cầu Nhật Tân, cầu Thăng Long…
Kết nối vùng từ The Lotus Center Tây Hồ:
Khu đô thị Ciputra: ngay trong khu đô thị Cầu Nhật Tân: 500m
Sân bay Nội Bài: 18km
Công viên nước Hồ Tây: 1km
Thung lũng hoa Hồ Tây: 1.5km
Chợ Bưởi: 4km Đại học Quốc gia: 1km
Bến xe Mỹ Đình: 9km
Khu liên hợp thể thao Quốc gia Mỹ Đình: 10km
Bệnh viện E: 7km
Công viên Hòa Bình: 4km
Trường Quốc tế LHQ ( UNIS): 1km

ĐIỂM QUA HỆ THỐNG TIỆN ÍCH TẠI THE LOTUS CENTER CIPUTRA
Tiện ích The Lotus Center Ciputra được các khách hàng đánh giá cao bởi sự đa dạng và cao cấp, đạt chuẩn khách sạn 5 sao. Với 5 tầng trung tâm thương mại, chủ đầu tư Vimefulland tích hợp hàng loạt tiện ích đẳng cấp dành cho cư dân như các phòng tập Gyms, Yoga & Fitness, khu vui chơi trẻ em trong nhà, bể bơi 4 mùa, siêu thị, Spa, nhà hàng Á — Âu… Tiện ích ngoại khu của dự án bao gồm:
Bể bơi ngoài trời + vườn BBQ
Tuyến phố đi bộ
Tuyến đi dạo Lối vào sảnh lớn Khu vui chơi trẻ em
Cổng chào chính
Trục đường chính
Phía trước khu quảng trường
Chòi nghỉ + dịch vụ
Quảng trường nhạc nước + Cây ánh sáng
Vườn nhỏ khu thấp tầng Cổng phụ

MẶT BẰNG, THIẾT KẾ CĂN HỘ THE LOTUS CENTER VIMEFULLAND
Các kiến trúc sư của dự án The Lotus Center Tây Hồ đã kế thừa những giá trị tinh hoa của kiến trúc và nội thất thế giới, khéo léo đưa những đường nét tinh tế vào The Lotus Center Ciputra. Sự giao thoa giữa các phong cách kiến trúc, sự hòa trộn từ đường nét trẻ trung hiện đại của vật liệu mới, với những hoa văn đá, dát vàng theo phong cách cổ điển châu Âu, căn hộ sẽ trở nên “đắt giá” khi mỗi gia chủ đều cảm nhận được cuộc sống bình yên, hưởng thụ.
Sẽ còn gì tuyệt vời hơn khi trở về nhà sau những giờ làm việc căng thẳng, tận hưởng những phút giây thư thái bên người thân và gia đình…Cùng thưởng thức bữa cơm thân mật, hay ngắm hoàng hôn , nhâm nhi ly rượu vang ấm nồng bên ô cửa sổ, ban công..với tầm view Panorama ra Hồ Tây, sông Hồng lộng gió.
MẶT BẰNG THIẾT KẾ CĂN HỘ OFFICETEL TÂY HỒ — HOMETEL
Officetel Vimefulland Tây Hồ có vị trí tại lô đất TM01 — Ciputra — Phú thượng, tây hồ, Hà Nội. Có quy mô : 2 Đơn Nguyên A & B, 5 tầng hầm, 40 tầng nổi :
Tầng 1–2 : Shophouse ( sẽ bán cho khách hàng)
Tầng 3–4–5 :Vimedimex chuyển văn phòng về
Tầng 6–40 : Căn hộ
Tổng số căn : 3395 căn : 95 căn/ sàn ( 4 cụm thang máy, mỗi cụm 6 thang)
Thiết kế tổng quan tòa A — Officetel Tây Hồ — The Lotus Center Ciputra
Tòa A dự án Officetel Tây Hồ — The Lotus Center có quy mô 5 tầng hầm, 5 tầng thương mại, 43 căn/sàn, 20 thang máy/sàn chia làm 2 cụm thang máy. Các loại diện tích được thiết kế như sau:
+ Căn hộ 1PN diện tích 46m2: 19 căn/sàn
+ Căn hộ 2PN diện tích 61m2- 66m2: 21 căn/sàn
+ Căn hộ 2PN diện tích 75m2: 2 căn/sàn
+ Căn hộ 2PN diện tích 112m2: 1 căn/sàn
Mặt bằng tổng thể dự án
Mặt bằng tổng quan của dự án nhìn kỹ chúng ta sẽ biết được ưu, nhược điểm chi tiết của từng căn, từ đó giúp quý khách hàng muốn sở hữu căn hộ officetel tây hồ sẽ dễ dàng lựa chọn được căn hộ phù hợp cho riêng mình:
1. Căn hộ 1 phòng ngủ 46m2
Mỗi sàn có 19 căn hộ loại 1 phòng ngủ diện tích 46m2, trong đó:
– Có 10 căn ban công Đông Bắc gồm các căn: 03–04–05–06–07–08–38–39–42–43
– Có 4 căn ban công Đông Nam view nội khu và Hồ Tây: 33–34–11–12A
– Có 2 căn ban công hướng Nam view thành phố và Hồ Tây: Căn số 17–18
– Có 3 căn ban công Tây Nam view nội khu Ciputra: Gồm các căn 30–31–32

Thiết kế căn hộ officetel tây hồ 1PN
Ưu điểm căn hộ 1 phòng ngủ diện tích 46m2:
+ Diện tích vừa đủ, thiết kế không gian tối ưu rất linh hoạt.
+ Giá bán vừa túi tiền, không quá cao mà lại sở hữu ngay quận trung tâm của thành phố.
+ Số lượng căn hộ này không nhiều trong khi nhu cầu sở hữu của khách lại rất cao.
+ Là căn hộ 3 trong 1: Vừa để ở, vừa có thể làm văn phòng hoặc cho thuê là văn phòng, kinh doanh Homestay
+ Dễ dàng cho người nước ngoài thuê theo hình thức Hotel hoặc Homestay.
+ Có logia riêng biệt để lấy ánh sáng và phơi đồ (tất cả các căn hộ được thiết kế thông minh để đón ánh sáng tự nhiêu).
+ Có không gian làm việc và không gian nghỉ ngơi riêng biệt phù hợp làm văn phòng và cư chú qua đêm.
+ Có khu bếp riêng biệt để có thể kinh doanh Homestay.
+ Các căn 33–34–11–12A ban công Đông Nam view nội khu và Hồ Tây có tầm view rất tuyệt, mát vào mùa Hè, ấm vào mùa Đông.
+ Các căn 42–43 ban công Đông Bắc view toàn cảnh nội khu rất đẹp gồm: Khuôn viên cây xanh, bể bơi, đài phun nước…

Nhược điểm căn hộ officetel tây hồ 1 phòng ngủ:
+ Diện tích không được lớn,chỉ phù hợp với nhà đầu tư hoặc người độc thân hay gia đình trẻ mua để ở.
+ Bếp ăn bố trí ngay cửa ra vào nên dễ gây mùi khi nấu ăn (cần phải có công cụ hút mùi)
+ Tầm view hạn chế đối với những căn tầng thấp
+ Những căn ban công Tây Nam sẽ khá nóng vào mua Hè.
Đối với những căn hộ loại này sẽ hướng tới những ai nên mua căn hộ 1PN cho phù hợp:
+ Nhà đầu tư có số tiền nhàn rỗi mua để cho thuê làm văn phòng.
+ Nhà đầu tư mua từ 3–5 căn để kinh doanh theo mô hình Homestay.
+ Gia đình trẻ, người độc thân mua để ở rất phù hợp
+ Doanh nghiệp nhỏ và vừa, cộng đồng mới khởi nghiệp để làm văn phòng hay mở công ty riêng.
+ Mua căn hộ officetel này để làm việc cho yên tĩnh và dùng để nghỉ ngơi cuối tuần.

2.Đối với căn hộ 2 phòng ngủ
Tòa tháp officetel tây hồ một sàn có 24 căn hộ thiết kế 2 phòng ngủ gồm các loại diên tích:
+ Diện tích 61m2- 66m2: 21 căn/sàn gồm các căn officetel:
– 01–02: Ban công Tây Bắc view nội khu.
– 09–10: Ban công Đông Nam view Hồ Tây
– 15A-15B-19–20–21–22–23–24–25–26: Ban công hướng Nam view nội khu thành phố.
– 26–27: Ban công Tây Nam view nội khu Ciputra
– 35: Ban công Đông Nam view nội khu
– 36–37–40–41: Ban công Đông Bắc view nội khu.

Thiết kế căn hộ 2PN
+ Diện tích: 75m2: 2 căn/sàn gồm các mã căn:
– 12B và 16: Ban công hướng Nam view Hồ Tây và view thành phố.
+ Diện tích 112m2: Có 1 căn/sàn là căn 27, ban công hướng Nam view thành phố.
Ưu điểm căn hộ 2 phòng ngủ:
+ Thiết kế tối ưu công năng 2 phòng ngủ, 2 wc, 2 ban công tiện dụng.
+ Giá thành vừa túi tiền, dễ đầu tư, dễ chuyển nhượng, tính thanh khoản rất cao.
+ Cho thuê làm văn phòng cực kỳ hiệu quả
+ Dùng làm văn phòng với số lượng nhân sự 18–20 người.
+ Kinh doanh Homestay mang lại lợi nhuận cao (12–15%/năm)..
+ Căn hộ 11–12A ban công Đông Nam view Hồ Tây cực đẹp.
+ Các căn 35–36–37–40–41 view toàn cảnh nội khu cực đẹp.
+ Căn số 27 có diện tích rộng 112m2, phù hợp với doanh nghiệp đông nhân sự.
Nhược điểm căn hộ 2 phòng ngủ:
+ Giá thành cao hơn căn 1PN lên giảm số lượng khách hàng vì đa số chọn căn 1PN.
+ Không gian bếp nấu ăn sẽ dễ gây mùi, khắc phục bằng cách bật hút mùi khi nấu ăn hoặc bỏ hẳn khu bếp khi không cần thiết với làm văn phòng.
+ Các căn 28–29 ban công hướng Tây Nam sẽ khá nóng vào mùa Hè, khắc phục bằng cách trồng cây xanh ở ban công và sử dụng vật liệu chống nóng ở bức tường hướng Tây.
+ Những căn tầng thấp có tầm view hạn chế.
Trên đây là những phân tích chia sẻ về thông tin về thiết kế căn hộ 1PN và 2PN của căn hộ Officetel The Lotus Center. Với lợi thế ra hàng đợt 1 giá cực tốt, thiết kế tối ưu và giá bán vừa túi tiền, đây chính là cơ hội tốt nhất cho Quý khách hàng cũng như các nhà đầu tư xuống tiền để sở hữu được căn hộ ưng ý.
Căn hộ The Lotus Center đáp ứng đa dạng nhu cầu căn hộ từ diện tích 46 tới 112m2.
GIÁ BÁN, TIẾN ĐỘ THANH TOÁN, CHÍNH SÁCH BÁN HÀNG
Giá bán các căn hộ The Lotus Center Ciputra, Tiến độ thanh toán, Chính sách bán hàng liên hệ trực tiếp phòng kinh doanh chủ đầu tư Vimefulland
Để nhận các thông tin mới nhất quý khách hàng vui lòng liên hệ phong kinh doanh vimefulland:
Hotline : 0916.05.9696
Địa chỉ : Tầng 10,12 — Tháp A — Tòa nhà Sông Đà — 36 Mễ Trì — Nam Từ Liêm — Hà Nội.
https://bietthuathenafulland.vn/can-ho-officetel-vimefulland-tay-ho.html